中古 41m 100ts クレーンジャッキ販売中 場所 ハンブルク, ハンブルク州, ドイツ
中古
Doubleclick to zoom in
売り手に連絡
追加の写真や情報を依頼する
仕様
- 状態
- 中古
- 年
- 1997
- 在庫番号
- #1037231
- 全長
- 40.54メートル
- 最大ドラフト
- 2.79メートル
- ビーム
- 24.08メートル
- 巡航速度
- 7.0ノット
- エンジン総出力量
- 1850
- エンジンの最大数
- 2
- バースの数
- 120
- 造船所
- ボリンジャー
- カテゴリー
- クレーン 場所 ドイツ
- サブカテゴリ―
- 商業
- サブカテゴリ― 2
- オフショア船舶
- リスティングID
- 95440727
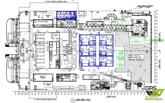
説明
LOA 40.54 m
Beam 24.08 m
Draft 2.79 m
Built in year 1997, rebuilt in 2012
Class : DNV
Flag : Panama
Gross Tonnage of 1,312 and Nett Tonnage of 393
3 legs of 70m length for max water depth of 61m
1 Crane / Gear installed with a max lifting capacity of 100 tons
1 Crane / Gear installed with a max lifting capacity of 25 tons
Total 120 berths
Speed : 7 knots
Engines : 2 x Caterpillar / Caterpillar Inc 12V149 TI Detoit, 1,382 kw, 1,600 rpm, Propellers 1 x Port Side + 1 x Starboard
Auxiliaries Engines : 2 Caterpillar 418 kw, Bowthruster (1 Bow Tunnel thruster 440hp)
もっと見つけます
$6,500,000 USD
この機械に関心がありますか?
この売り手は過去1週間に12回問い合わせを受けています。





